Estratto del documento

CORSO Corso

DI Facoltà

Prof. ARCHITETTURA di

Laurea

ing. di

Cesira Ingegneria

in

Ingegneria

Paolini TECNICA Civile

-

A.A.2023/2024 Edile-Architettura

1 e

CON Industriale

LABORATORIO Studente:

Esercitazione Christian

muratura Turrini

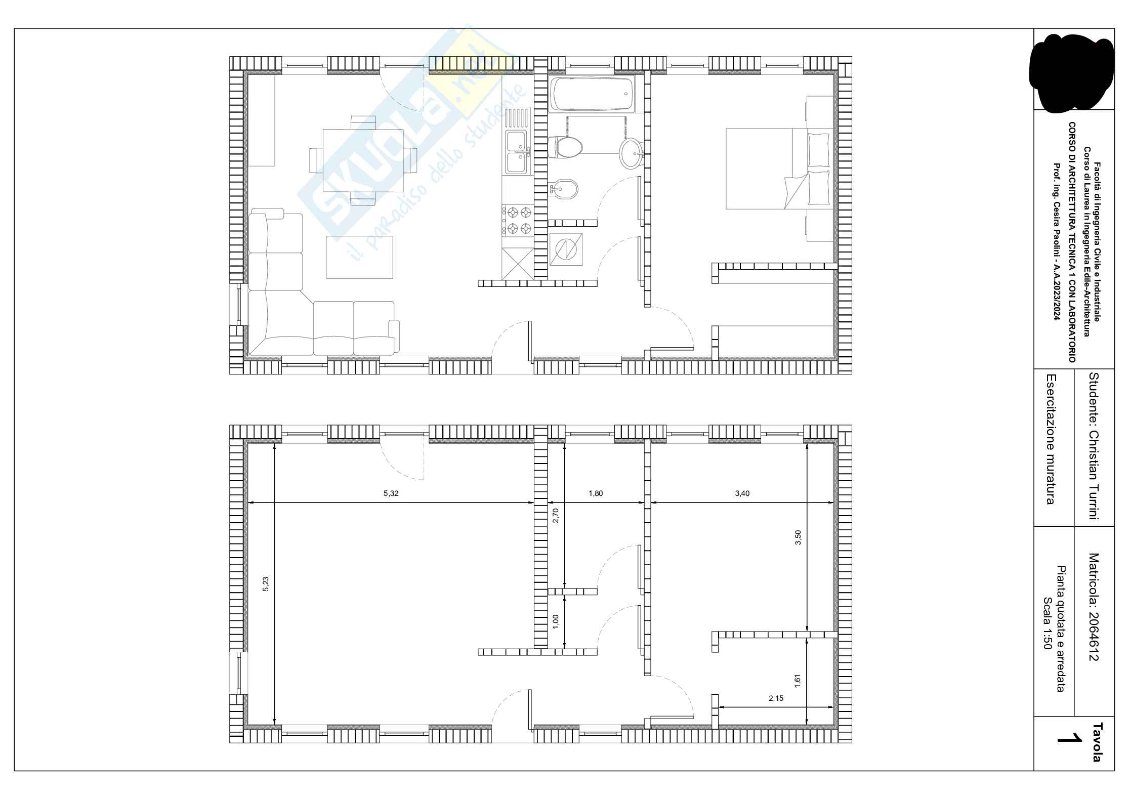
5,32 1,80 3,40

2,70 3,50 Matricola:

Pianta

5,23 Scala quotata 2064612

1,00 1:50 e

arredata

1,61

2,15 Tavola

1

carpenteria del piano terra CORSO Corso

DI Facoltà

Prof. ARCHITETTURA di

Laurea

ing. di

Cesira Ingegneria

in

Ingegneria

Paolini TECNICA Civile

-

A.A.2023/2024 Edile-Architettura

1 e

CON Industriale

LABORATORIO Studente:

Esercitazione

carpenteria della coperura Christian

muratura Turrini

Carpenteria

5,41 5,91 Matricola:

Scala piano 2064612

1:50 terra

e

copertura

5,41

5,41 Tavola

2

11,57 Cisterna CORSO Corso

DI Facoltà

Prof. ARCHITETTURA di

4,71 Laurea

ing. di

Cesira Ingegneria

in

Ingegneria

Paolini TECNICA Civile

-

A.A.2023/2024 Edile-Architettura

1 e

6,61 6,41 4,71 CON Industriale

LABORATORIO Studente:

Esercitazione Christian

muratura

S Fogna Turrini

11,57 Matricola:

12,27 Pianta

Scala delle 2064612

pozzo acque bianche fondazioni

1:50

pozzo acque grigie

pozzo sgrassatore

S Tavola

pozzo acque nere 3

CORSO Corso

DI Facoltà

Prof. ARCHITETTURA di

Laurea

ing. di

Cesira Ingegneria

in

Ingegneria

Paolini TECNICA Civile

-

A.A.2023/2024 Edile-Architettura

1 e

CON Industriale

LABORATORIO Studente:

Esercitazione Christian

muratura Turrini

Matricola:

Pianta

Scala della 2064612

copertura

1:50 Tavola

4

CORSO Corso

DI Facoltà

Prof. ARCHITETTURA di

Laurea

ing. di

Cesira Ingegneria

in

Ingegneria

Paolini TECNICA Civile

-

A.A.2023/2024 Edile-Architettura

1 e

CON Industriale

LABORATORIO

3,86

2,7 Studente:

Esercitazione Christian

muratura

1,41 Turrini

Matricola:

Trancia

Scala Prospetto 2064612

1:20 e

Sezione Tavola

5

b

b a

a CORSO Corso

DI Facoltà

Prof. ARCHITETTURA di

Laurea

ing. di

Cesira Ingegneria

in

Ingegneria

Paolini TECNICA Civile

-

A.A.2023/2024 Edile-Architettura

1 e

CON Industriale

LABORATORIO

Particolare b Studente:

Esercitazione

Particolare a Christian

muratura Turrini

Matricola:

Nodi

Scala della 2064612

1:

Anteprima
Vedrai una selezione di 4 pagine su 11
Esercitazioni Architettura tecnica I Pag. 1 Esercitazioni Architettura tecnica I Pag. 2
Anteprima di 4 pagg. su 11.
Scarica il documento per vederlo tutto.
Esercitazioni Architettura tecnica I Pag. 6
Anteprima di 4 pagg. su 11.
Scarica il documento per vederlo tutto.
Esercitazioni Architettura tecnica I Pag. 11
1 su 11
D/illustrazione/soddisfatti o rimborsati
Acquista con carta o PayPal
Scarica i documenti tutte le volte che vuoi
Dettagli
SSD
Ingegneria civile e Architettura ICAR/10 Architettura tecnica

I contenuti di questa pagina costituiscono rielaborazioni personali del Publisher Bianconero03 di informazioni apprese con la frequenza delle lezioni di Architettura tecnica I e studio autonomo di eventuali libri di riferimento in preparazione dell'esame finale o della tesi. Non devono intendersi come materiale ufficiale dell'università Università degli Studi di Roma La Sapienza o del prof Paolini Cesira.
Appunti correlati Invia appunti e guadagna

Domande e risposte

Hai bisogno di aiuto?
Chiedi alla community